Spread across a large land parcel, DLF Alameda Sector 73 Gurgaon is a ready-to-move housing society where families are already residing, making it a secure and practical choice for both end-users and investors.
DLF Alameda Sector 73 Gurgaon – Project Overview
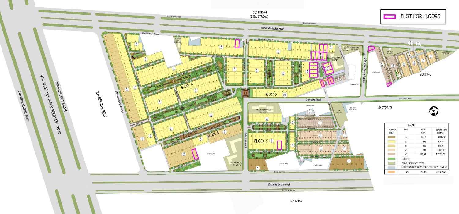
DLF Alameda Sector 73 Gurgaon is developed over approximately 111.4 acres, making it one of the most spacious townships in the region. The project consists of a well-planned layout that includes residential plots, independent floors, and villas.
Key Project Highlights:
- Total Area: 111.4 Acres
- Total Units: 7682 Units
- Towers: 29 Low-rise Blocks (Stilt + 4 Floors)
- Configurations: 4BHK & 5BHK Independent Floors, 3BHK Villas
- Status: Ready to Move
- Developer: DLF Limited
This township is designed with wide internal roads, green landscapes, and modern infrastructure, making DLF Alameda Sector 73 Gurgaon a complete residential ecosystem.
DLF Alameda Plots Gurgaon – Township Living Advantage
One of the strongest aspects of DLF Alameda plots Gurgaon is the flexibility it offers to buyers. The plotted development allows homeowners to build according to their own design preferences while enjoying the benefits of a gated township.
Key benefits of plotted development:
- Freehold ownership
- Flexibility in construction
- Long-term appreciation potential
- Low-density living
For investors, DLF Alameda plots Gurgaon represent a strong opportunity due to increasing demand for land-based assets in Gurgaon.
DLF Alameda Gurgaon Details – Independent Floors & Villas
Apart from plots, DLF Alameda Gurgaon details include premium independent floors and villas designed with modern architecture and functional layouts.
Configuration & Pricing:
- 4BHK Independent Floor
Size: 3750 – 4700 sq ft
Price: ₹6 Cr – ₹7.52 Cr
- 5BHK Independent Floor
Size: 5511 – 6240 sq ft
Price: ₹8.82 Cr – ₹9.98 Cr
- 3BHK Villa
Size: 5844 sq ft
Price: ₹9.35 Cr onwards
These homes are designed to maximize usable space and include features such as:
- Private entrances
- Dedicated elevators
- Basement and servant rooms
- Covered parking
This makes DLF Alameda Sector 73 Gurgaon ideal for families seeking independent living.
DLF Alameda Gurgaon Price – Value Perspective
When evaluating DLF Alameda Gurgaon price, it is important to consider:
- Premium builder (DLF)
- Large township scale
- Ready-to-move advantage
- Strategic SPR location
Compared to other premium projects, the pricing reflects long-term value rather than speculative pricing.
DLF Alameda Township Gurgaon – Infrastructure & Lifestyle
DLF Alameda township Gurgaon is designed as a self-sustained residential community with modern infrastructure and lifestyle amenities.
Key Features:
- Lush green parks and tree-lined avenues
- Underground electrification (wire-free zone)
- Advanced drainage system
- Wide internal roads
- Gated community with 24/7 security
- CCTV surveillance in key areas
The township ensures a peaceful environment while maintaining connectivity to urban conveniences.
DLF Alameda Location Advantages
DLF Alameda location advantages play a major role in its demand.
The project is located on Southern Peripheral Road, providing seamless connectivity to:
- NH-48 (Delhi-Jaipur Expressway)
- Golf Course Extension Road
- Sohna Road
- Dwarka Expressway
Nearby Landmarks:
- Omaxe City Centre – 3.8 km
- AS Business Park – 4.7 km
- Park Hospital – 5.1 km
- Hyatt Regency Gurgaon – 6.6 km
- Gurugram University – 7.7 km
- IGI Airport – 24.2 km
This connectivity makes DLF Alameda Sector 73 Gurgaon highly convenient for working professionals and families.
DLF Alameda Sector 73 Connectivity
DLF Alameda Sector 73 connectivity is one of the strongest aspects of the project.
- Direct access to SPR
- Close proximity to NH-48
- Easy reach to corporate hubs
- Upcoming infrastructure developments
The upcoming cloverleaf flyover connecting SPR, NH-48, and Central Peripheral Road will further enhance accessibility.
DLF Alameda Sector 73 Gurgaon Investment Potential
From an investment perspective, DLF Alameda Sector 73 Gurgaon offers strong fundamentals:
- Trusted developer (DLF)
- Ready-to-move township
- Limited supply of low-rise floors
- Growing demand in SPR corridor
The combination of plotted development and independent floors makes it suitable for both short-term stability and long-term appreciation.
Why Choose DLF Alameda Sector 73 Gurgaon
There are several reasons why buyers prefer DLF Alameda Sector 73 Gurgaon:
- Builder credibility with a strong track record
- Premium low-rise independent living
- Large township with modern infrastructure
- Excellent connectivity to major roads
- Peaceful green environment
- Ready-to-move advantage
About DLF Group
DLF Limited is one of India’s most reputed real estate developers with over 75 years of legacy. Known for delivering premium residential and commercial projects, DLF has played a major role in shaping Gurgaon’s real estate landscape.
Projects like DLF Cyber City, DLF Ultima, and DLF Park Place highlight the developer’s commitment to quality, design, and timely delivery.
Final Thoughts
DLF Alameda Sector 73 Gurgaon is a well-planned township offering a rare combination of plotted development, independent floors, and villas in a prime location.
For buyers looking for space, privacy, and long-term value, this project stands out as one of the most reliable options in Gurgaon.
FAQs
1 What is DLF Alameda Sector 73 Gurgaon known for?
Ans: DLF Alameda Sector 73 Gurgaon is a premium residential township offering plots, independent floors, and villas. It is known for low-density living, strong connectivity, and DLF’s trusted brand value.
2. What configurations are available in DLF Alameda Gurgaon?
Ans: DLF Alameda Sector 73 Gurgaon offers 4BHK and 5BHK independent floors along with 3BHK villas. The project also includes plotted development options for custom home construction.
3. What is the price range of DLF Alameda Sector 73 Gurgaon?
Ans: The DLF Alameda Gurgaon price starts from approximately ₹6 Cr for 4BHK independent floors, ₹8.82 Cr onwards for 5BHK floors, and ₹9.35 Cr for villas, depending on size and location.
4. How is the location of DLF Alameda Sector 73 Gurgaon?
Ans: DLF Alameda Sector 73 Gurgaon is located on Southern Peripheral Road with excellent connectivity to NH-48, Sohna Road, Golf Course Extension Road, and major business hubs in Gurgaon.
5. Is DLF Alameda Sector 73 Gurgaon a good investment?
Ans: Yes, DLF Alameda Sector 73 Gurgaon is considered a strong investment due to its ready-to-move status, premium builder, plotted development, and increasing demand in the SPR corridor.