For buyers who want to buy property in Gurgaon beyond typical high-rise formats, G99 stands out because it combines plotted development with township-scale planning. Sector 99 is closely linked with the Dwarka Expressway growth story, and several project pages highlight its connectivity to the 150-metre-wide Dwarka Expressway, Delhi access, airport reach, and proximity to daily-use infrastructure. That makes G99 relevant not only for end-users searching for Residential property in Gurgaon, but also for investors focused on Plots in Gurgaon, Plots in Gurugram, and Best plots for investment in Gurugram.
Project Overview
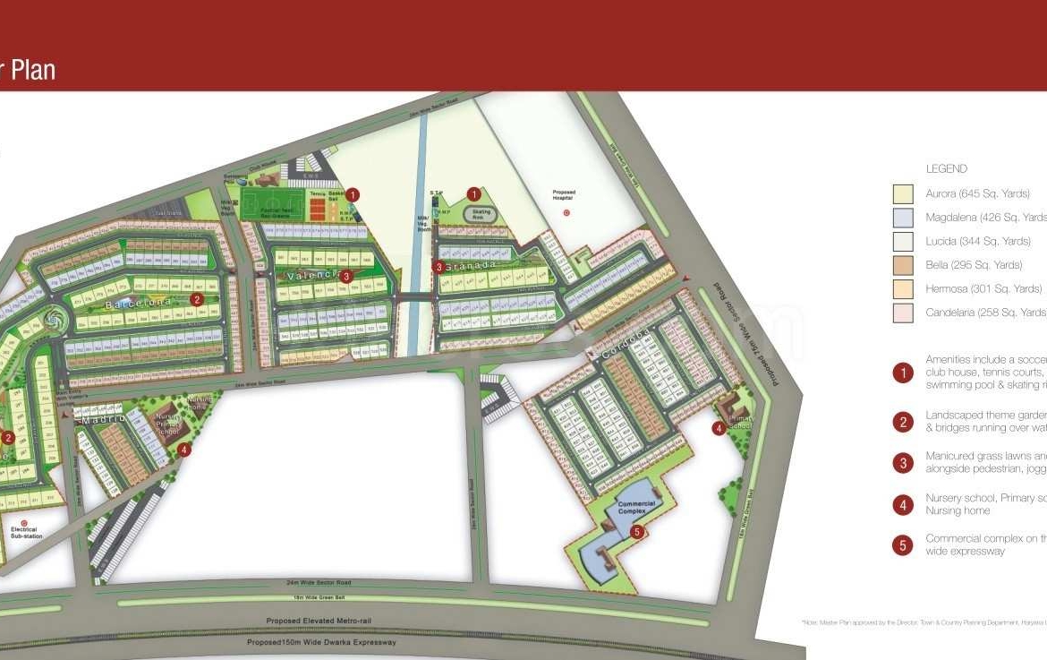
G99 is marketed as an integrated township with a plotted component and community infrastructure. Across the sources you shared, the project is consistently described as a spacious residential development in Sector 99 on or near Dwarka Expressway. MagicBricks lists the project under Uppal G99, while other project pages describe it as a premium plotted township with landscaped open spaces, parks, and lifestyle amenities. ReiasIndia describes it as a gated residential community built around green spaces and parks, with luxury plots and community facilities.
That positioning is important from an SEO and buyer-intent perspective. Many buyers looking for Land plots in Gurugram or Verified plots in Gurgaon do not want raw, isolated parcels; they prefer plotted developments inside an organized township. G99 fits that buyer mindset because it is not just about owning land, but about owning land within a planned neighborhood.
Plot Sizes and Current Price Positioning
Based on the current availability screenshots you shared, the active plot options for this page can be presented in the range of 2322 sq.ft. to 5805 sq.ft., with a visible price range of about ₹5.8 Cr to ₹12.9 Cr plus charges. Your screenshots also show examples like 2322 sq.ft., 2655 sq.ft., and 2709 sq.ft. plot options. Separately, other portals list size and price ranges differently depending on live inventory and listing dates. MagicBricks currently shows a broad price band of approximately ₹5.93 Cr to ₹14.38 Cr for plots, while ReiasIndia mentions a range roughly around 258 to 645 sq. yd. for plotted options.
For SEO, this lets the page rank across multiple buyer searches such as G99 Sector 99 Gurgaon price, G99 Gurgaon price list, Plots in Gurgaon, Property for sale in Gurgaon, and Gurugram plot availability. It also helps attract serious search intent from users comparing ticket size, plot area, and value on the Dwarka Expressway belt.
Location Advantage of G99 Sector 99 Gurgaon
One of the biggest strengths of G99 is location. Sector 99 has steadily gained visibility because of its connection with the Dwarka Expressway corridor. Source pages repeatedly highlight proximity to The Hive Shopping Mall, Imperial Heritage School, Basai Dhankot station, Yashroop Hospital, DPG Institute of Technology, NH-8/IMT Manesar, and IGI Airport. This type of connectivity matters for both self-use and investment because it improves livability today while also supporting future capital appreciation.
From a content strategy angle, this project page should naturally capture searches around real estate in Gurugram, Property in Gurgaon, Plots in Gurugram, and Residential plots in Gurugram. Sector 99 is especially relevant for buyers who want Dwarka Expressway exposure but do not necessarily want to buy into only apartment-led supply. In that sense, G99 offers a differentiated product within the broader Real estate Gurgaon market.
Amenities and Township Experience
Amenities are another reason why G99 has continued to stay relevant. The various project pages mention features such as a clubhouse, swimming pool, landscaped gardens, jogging and cycling tracks, tennis and badminton courts, soccer field, parks, security, power backup, reserve parking, visitor parking, gym, kids’ area, and community spaces. ReiasIndia also mentions commercial areas, schools, nursing homes, and recreational facilities within or around the township concept.
This matters because buyers searching Residential property in Gurgaon often compare plotted communities with Apartments in Gurgaon, Flats in Gurgaon, and Villas in Gurgaon. A project like G99 sits in an attractive middle ground: it gives you plot ownership and flexibility, while still being part of an amenitized residential ecosystem. That is exactly the sort of messaging that helps rank for keywords like Plots in Gurgaon, Land plots in Gurugram, and Best plots for investment in Gurugram.
Why G99 Can Appeal to Investors
For investors, the real question is not whether G99 is a known name, but whether it fits today’s Gurgaon market cycle. In the current environment, plotted developments on strategic corridors tend to attract long-term capital because land is finite, township-scale plotted inventory is limited, and buyer preference has shifted toward flexibility and independent living in many budgets. G99 benefits from being ready to move, already established, and positioned in a location that is directly tied to Dwarka Expressway-led growth.
That does not automatically make every plot a great deal; price, facing, road width, and exact location within the township still matter. But from a search and content perspective, this project deserves visibility for high-intent keywords like Sector 99 Gurgaon property investment, G99 Sector 99 location advantages, best projects in Sector 99 Gurgaon, and Property for sale in Gurgaon.
Who Should Consider G99?
G99 can be a good fit for several buyer profiles. If you are an end-user who wants to build your own home instead of buying one of the many Flats in Gurgaon or Luxury apartments in Gurgaon, this project gives you that flexibility. If you are an investor looking for Verified plots in Gurgaon within a large township rather than an isolated land patch, G99 becomes even more relevant. And if you are comparing inventory across Upcoming projects in Gurgaon, New residential projects in Gurgaon, and established communities, G99 offers the advantage of being ready to move rather than purely launch-driven.
At the same time, your page can internally link to related categories on your website such as Commercial property in Gurgaon, Apartments in Gurgaon, Buy flats in Gurgaon, and Affordable housing in Gurgaon. That internal linking structure will help both user navigation and topical authority.
Honest Project Take
G99 is not a typical launch-story page. It is better positioned as an established plotted township in a strategic Gurgaon corridor. That is actually an advantage for serious buyers because the discussion can move beyond pure marketing claims and focus on plot sizes, livability, connectivity, and actual township presence. With a large land parcel, plotted offerings, and a Dwarka Expressway-linked location, G99 remains relevant for buyers who want Property in Gurgaon with stronger land-led value than many standard apartment options.
Final Verdict
If your goal is to own or invest in Plots in Gurgaon, Plots in Gurugram, or Residential plots in Gurugram within a large, ready-to-move township, G99 Sector 99 Gurgaon deserves consideration. It offers scale, connectivity, established project identity, and a location aligned with the long-term Dwarka Expressway growth narrative. Buyers looking for Gurugram plot availability, Land plots in Gurugram, and Best plots for investment in Gurugram are likely to find this project relevant, especially if they value plotted ownership over standard apartment inventory.
FAQ
Q1: What is the price of G99 Sector 99 Gurgaon?
A: The price ranges from approx. ₹5.8 Cr to ₹12.9 Cr depending on plot size and location.
Q2: Is G99 Sector 99 Gurgaon a good investment?
A: Yes, due to its location near Dwarka Expressway and growing demand for plotted developments in Gurgaon.
Q3: What plot sizes are available in G99 Gurgaon?
A: Plot sizes range from approx. 2322 sq.ft. to 5805 sq.ft., suitable for different budgets.
Q4: Is G99 Sector 99 Gurgaon ready to move?
A: Yes, it is a ready-to-move plotted township with families already residing.
Q5: Why are plots in Gurgaon a good investment?
A: Plots offer better long-term appreciation, flexibility, and ownership compared to apartments.